对于现场观看表演和电视直播,视频系统、照明系统要比场地扩声系统更加重要,因此,在项目的实际和实施中,视频和照明系统要优先考虑。

扩声系统的总体改造方案,系统的音频控制、传输通过Dante网络构建数字加模拟的混合网,场馆内所有音频信号均汇聚到音频控制机房进行分发。数字调音台同样采用一主一备,主调音台可搬至场内进行现场调控,并在主席台区预留音频接口箱,可接入有线传声器、无线传声器系统。系统使用时,需要根据不同赛事的使用场景对数字调音台以及功率放大器进行预设。系统基本框架如图2所示。

对于像冬奥会这样重要的赛事,系统的安全性与可靠性极为重要。除注重选用可靠性高的设备外,对于信号传输主干网采用光纤传输,部分采用模拟线缆,以满足一些特殊的使用场景。同时,设置点对点的直通路径进行传输,如功能机房与功能机房之间、现场不同区域之间、现场与功能机房之间。这种传输路径稳定、延时小,降低数据传输中的丢包问题,故障排查简单。
系统的配电,根据奥运赛事的需求,均采用双路市电+ATS+UPS,相关电气设备安装于四层音频控制室。现有供电方式在市电闪络时不会对扩声系统造成影响;ATS开关容量160 A,运行方式为互为备用;UPS电源柜就近安装于配电柜旁,输出65 kW,在线运行,可带柜内全部负荷持续供电30 min。为了保障赛时安全运行,在赛前做好配电柜内所有电气设备的隐患排查工作,留好备品备件,赛时安排专人对配电柜进行看护。
对于声场的设计,扬声器系统既考虑主席台区的覆盖,又要考虑整个观众区的覆盖;在扬声器选型上,要符合重量要轻、体积小、声压大等性能,以满足承重、避免建声缺陷、提高语言清晰度、避让视频照明等其他设备等一系列的相关要求。通过仿真软件NS-1模拟设计,确定扬声器数量、吊挂高度、投射角度等,以达到体育建筑设计规范一级指标,声压级为105 dB,语音清晰度指数不小于0.5,声场模拟点位如图3所示。不同的区域根据实际的面积、纵深覆盖需求,对线阵列扬声器的数量、分频、吊挂角度与高度进行配置。主扩声扬声器系统采用14组双12英寸三分频无源全频线阵列扬声器,吊挂覆盖整个观众区。其中,北侧方向共分8组,每组根据覆盖区域分别由2~8只扬声器单元组成;东西方向各1组,每组4只扬声器单元;南侧方向共分4组,每组根据覆盖区域分别由4~8只扬声器单元组成。扬声器布置平面图如图4所示。以评论员席以及播报席区域为例,由于区域观众席第一排至最后一排的高差为15 m,如图5所示,因此使用了2组线阵列扬声器进行覆盖,分别使用了4只、7只扬声器单元,其吊挂角度、高度分别为-7°、20.5 m,-2°、17.9 m,如图6所示。



另外,在体育工艺系统中,采用了比赛设备集成管理系统,通过比赛设备集成管理平台,可将场地扩声系统、大屏显示系统、赛事运营系统、场地灯光系统以及场地投影系统进行集成互联,通过将各系统集成联动,满足不同使用场景下的功能需求,增加了系统使用运行的方便性、整体性。
系统的设计和实施受场地装修的限制,既要照顾整个场馆美观,又要满足场馆内功能的使用要求。因此,对于系统方案的实施,随时与相关方沟通,不断进行调整优化。
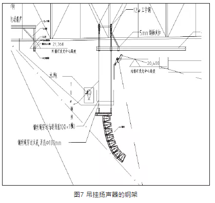
(1)扬声器的吊挂
在扬声器系统吊挂过程中,由于首都体育馆保留了原有大顶球型网架结构、马道,在球型网架的结构下还有铝板造型结构以及龙骨,而扬声器系统的吊挂点位于大厅顶层铝板之上,需要穿过结构下悬杆、铝板和铝板固定龙骨层,避开灯光线路以及马道,并且每一组线阵列扬声器的安装位置不相同,需要精确的定位,以满足现场覆盖的范围及角度。基于这种情况,在进行了实地勘察测量后,经各方讨论,最后选择了单独设计安装钢结构吊点的吊挂方式。根据现场不同的位置,定制吊挂扬声器的钢架,如图7、图8、图9所示,吊挂高度可以在钢架上调整。这一结构不仅可以避开场地照明光路等,还可以应对施工过程中马道等一些设施的更改。



(2)投影幕布对扬声器系统的影响
比赛场地上空设置有巨大的投影幕布,面积与比赛场地近乎一样。为此,对场地扩声系统提出了多种方案。其中,一种方案是调整扬声器的覆盖角度,以避免因投影幕布反射形成的回声,但受整体环境所限,难以实现。另一种方案是考虑采用透声幕布,扬声器吊挂在透声幕布上方,但会影响投影效果。在实施中,最初采用透声幕布,经过多方沟通,方案几经调整,在安装位置与投影幕布之间取得平衡,最终采取分段式幕布加扬声器吊挂调整,将扬声器吊挂与各幕布之间,并选用8只小尺寸、高声压的点声源扬声器P12,既不会影响投影效果,也可满足声场覆盖,达到设计指标。
(3)音频线缆的敷设
对于音频线缆的敷设,由于首都体育馆初修建于1968年,管线桥架设计相对复杂繁琐,场馆1层至4层垂直桥架没有完全贯通,4层的水平桥架也没有联通,大大增加了音视频传输线缆敷设的难度,同时大大增加了音频线缆的敷设长度。因此,在现场的音视频插座箱与四层音控室之间,采用光缆及中继设备进行传输,包括调音台接口箱、交换机、音频光端机等。通过数模结合的传输方式,解决了信号传输线缆过长的问题,并大大增加了信号传输的可靠性与安全性,满足了奥运赛事期间不同赛事的需求,2022年北京冬季奥运会组委会迅雷AV黄色成人麻豆组可根据不同使用场景进行切换。
施工完毕后,进行了现场实测,测点如图10所示。经现场测试,扩声系统声压级可基本达到设计值,其他测量结果见图11、表2—表4。测试结果反映,该项目达到设计目标及行业相关标准指标。



首都体育馆改造项目的方案设计与实施,体现了简约而不简单的理念,具有可靠性、实用性,特别使在前端固定设备的布置、安装方面,不断深化设计;对于控制处理部分的设计,充分满足前端固定安装设备至机房控制操作设备之间的传输、处理的需求,尽量简化机房控制设备的操作繁琐程度,采取集成化的控制方案。系统调试、测试后,运行稳定,清晰度得到用户的认可,并通过验收。经过测试赛的应用,证明这项设计完全达到要求。